Widerstand gegen Pläne im Rheinbogen
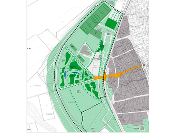
Gegen die Planung im Rheinbogen, südlich der Lindenallee die Landschaft zu modellieren und Spiel- und Grillplätze einzurichten, erhebt sich Widerstand.
„Landschaft belassen“
Gegen die Stimmen der anderen Parteien konnte die Planung letztes Jahr die Vertreter von CDU und Peto überzeugen, die im Planungsausschuss mit ihrer Mehrheit grünes Licht geben konnten. Es war immerhin bereits die siebte Planungsvariante, die damit Gehör fand – weit umfänglichere Pläne wurden unter anderem bei einem Workshop aller Parteien abgelehnt. Aber auch die scheinbar „schlankere“ Lösung hat Gegner, unter Naturschützern und Jägern, beim Bürgerverein und, wenn man sich umhört, scheinbar auch in der breiten Bevölkerung. „Wir wollen die Landschaft hier so belassen wie sie ist“, hört man etwa von Paul Vogel, als Jäger Mitglied im Hegering und somit auch im Tier- und Naturschutz bewandert, „hier in die Natur einzugreifen, ist falsch und schadet Natur und Tieren.“
Freizeitwert und Folgekosten
Vor allem gegen die geplanten Grillplätze erhebt Klaus Glasow vom Monheimer Bürgerverein seine Stimme: „Das schafft nur Lärm und Verschmutzung, wo man sie nicht will.“ Unkalkulierbar seien die Folgekosten: „Eine solche Anlage muss gepflegt und gereinigt werden. Jeder weiß, wie es jetzt schon am Rheinufer aussieht.“ Schließlich seien die Baukosten zu hoch: „Die für die Landschaft typische Ackerfläche zu modellieren, ist unnötig teuer.“ Nun sei eine Aktionsgemeinschaft „Pro Rheinbogen“ in Gründung. Interessenten können Kontakt aufnehmen: Sie erreichen den BVM unter: http://www.buergerverein-monheim.de und info[at]buergerverein-monheim.de oder per Telefon unter 02173/277780.
Die E-Mail-Adresse ist gegen Spambots geschützt! Sie müssen JavaScript aktivieren, damit Sie sie sehen können.
Demokratieforum startet mit Auftaktabend
In Langenfeld beginnt eine neue Veranstaltungsreihe zum Austausch über gesellschaftliche Themen. Auftakt ist am Donnerstag, den 7. Mai.mehr
Trainingslager stärkt Demokratiekompetenz
Die Volkshochschule bietet ein kostenloses Angebot für Engagierte an. Es gibt mehrere Termine im April und Mai.mehr
Ella Luff soll neue Beigeordnete werden
Die Stadtverwaltung schlägt dem Rat die bisherige Leiterin des Bereichs Bauwesen zur Wahl vor.mehr




